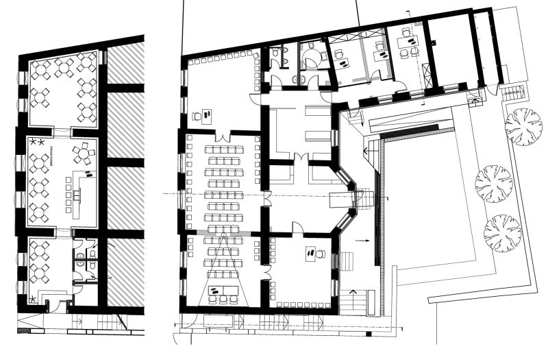
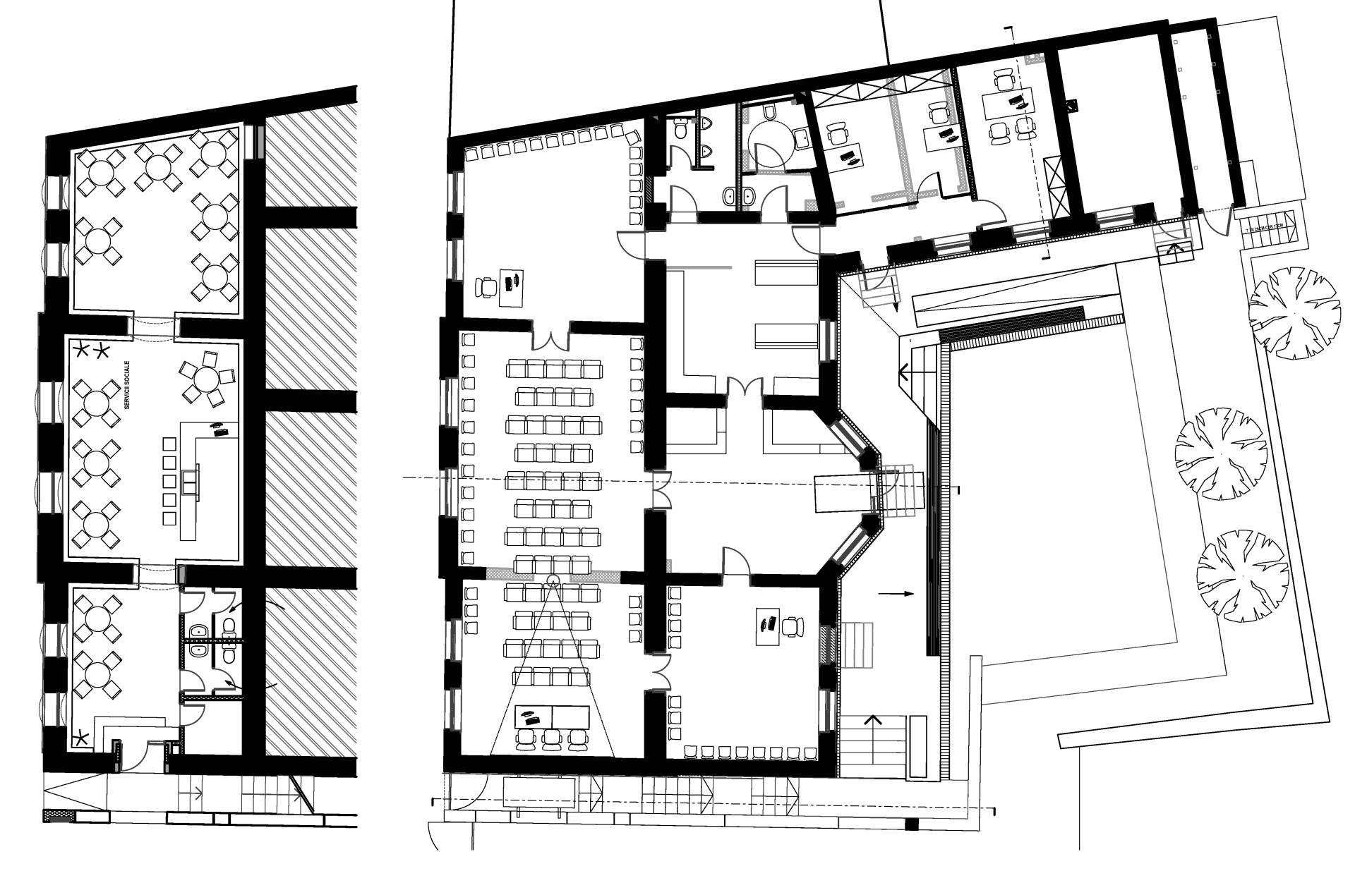
CSIPIKE YOUTH CENTRE

Built on the dawn of the 20th century in secessionist style, the former house of a lawyer forms a remarkable segment in the oldest street view of the town. The building had become the beloved “Csipike” kindergarten in the early '80s, but due to serious structural decay it was abandoned by the year 2002. A final chance of salvation shew up, when it was included as social component in the EU-financed urban space rehabilitation project. Following major structural interventions and restoration work carried out on architectural surfaces, the whole building has been reconfigured for community service, giving home to multifunctional spaces, offices and pub, reviving the forgotten courtyard as public space and open-air scene for various events.

css templates
location CSÍKSZEREDA / MIERCUREA CIUC, HARGHITA county| beneficiary CSÍKSZEREDA Mayor's hall  |  
in collaboration with arh.TÖVISSI ZSOLT | structure SATA IGNÁCZ, LAKATOS-HAJDÓ BARNA |  hvac ISZLAY ÉVA  | electrics BARTHA ÁBEL | construction HARBAU srl  |  surface 516 m² | completed 2012 |
  

530210 - str.Gál Sándor, nr.16
Csíkszereda - Miercurea Ciuc