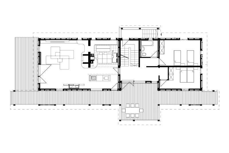
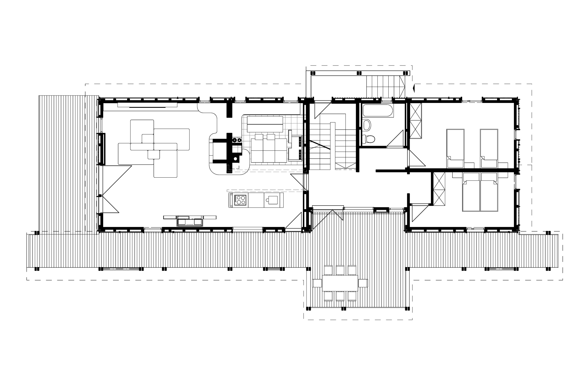
NÉRA PENSION

The high-pitched roof,the white rendered fields surrounding the facade openings and the playful wooden textures of the house's skin are trademarks of local vernacular architecture. The large articulated roof planes dominating the
architectural volume are penetrated only letting in the obscure light in living spaces with traditional scent.

how to create a web page for free

location CSÍKBORZSOVA / BÂRZAVA, HARGHITA county | beneficiary F family  |  structure RUFF ÁGNES |
 hvac&electrics HAYNAL HUNOR-ATTILA | photo BALÁZS ÁRPÁD |construction KVADRUM AXIS srl  |  surface 372 m²  |completed 2015

  

530210 - str.Gál Sándor, nr.16
Csíkszereda - Miercurea Ciuc