REHABILITATION OF "BACZKAMADARASI"
REFORMATE COLLEGE 

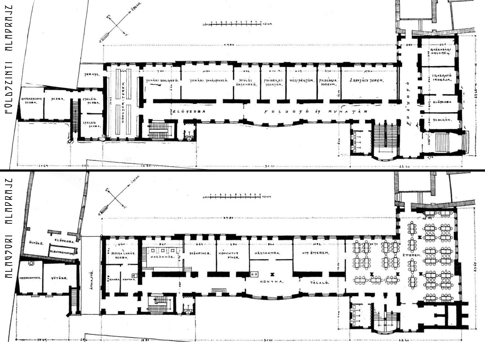
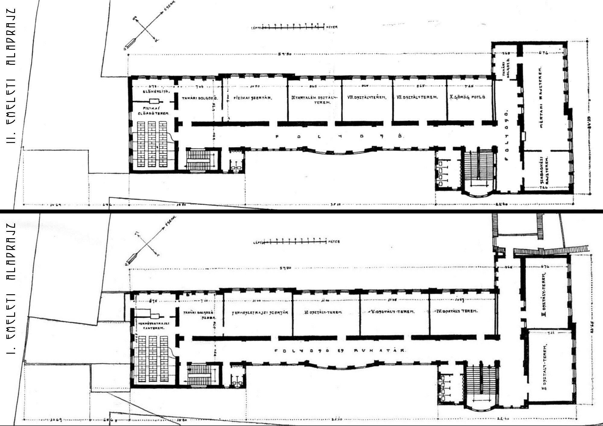
The school building built between 1910 and 1912 is the result of an architectural competition won by architect Magyar Vilmos of the 17 participating projects. Considered flagship contemporary architecture at the time of edification, we encounter both technological innovations and artistic sculptural elements that show an uncommon devotion at the Reformed College's "new" building. During its over 100 years existence the interventions were limited to current maintenance and strictly necessary repairs, resulting in serious damages on the spectacular roof structure and on the highly ornamented facades. There was an urgent need for extensive rehabilitation works on the ranked historical monument of regional interest.

create a site

location SZÉKELYUDVARHELY / ODORHEIU SECUIESC, HARGHITA county  |  beneficiary  REFORMED EPISCOPACY  OF TRANSYLVANIA |  structure SATA IGNÁCZ  | construction LUKÁCS ALPIN srl, TRIGA srl | 
surface 5155 m² | completed 2013

  

530210 - str.Gál Sándor, nr.16
Csíkszereda - Miercurea Ciuc